«Этот проект инвестиционный — квартира была приобретена для сдачи в аренду, — рассказывает дизайнер Иван Чернечков. — Главной задачей было организовать современное пространство для семьи или холостяка. Интерьер должен был выглядеть дорого, но без ухода в дороговизну ремонта. В итоге мы стремились к минимализму, который не воспринимался бы пресным, а наоборот — создавал атмосферу уюта и вдохновения». Посмотрим, что получилось.

Место: г. Москва, ЖК «Павелецкая Сити»
Объект: евродвушка 39 кв.м
Высота потолков: 2,87 м
Автор проекта: дизайнер-архитектор Иван Чернечков
Автор фото: Мария Иринархова
Бюджет: 4,39 млн рублей
Реализация: 2024 год
Что просили заказчики
- Создать современный и функциональный интерьер, который понравится большинству арендаторов.
- Организовать места для хранения с учетом эргономики пространства.
- Использовать яркие акценты для создания уюта и неординарности.
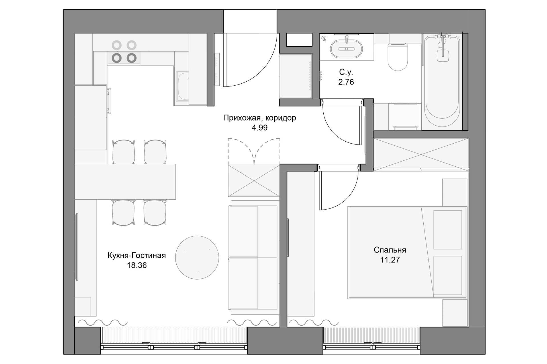
Логика планировки
Застройщик сдавал квартиру в отделке white box. У планировки был лишь один недостаток: при входе в квартиру взгляд упирался в диван. Решили задачу с помощью шкафа, который «отсек» гостиную от прихожей. Таким образом зонировали пространство и создали дополнительное место для хранения.

Кухня-гостиная
Гарнитур был выполнен по индивидуальному заказу: каждое место для хранения здесь продумано во избежание визуального шума на белой столешнице из искусственного камня. Фартук выложили из плитки. «Верхние шкафы с фасадами под дерево реализовали "в потолок", как и другую мебель в квартире. Такой прием визуально вытягивает стены и увеличивает высоту потолка, — комментирует дизайнер. — Нижние шкафы в белом цвете с контрастными черными ручками добавляют графичности и геометрии пространству».
Обеденную зону реализовали с помощью полубарной стойки, которую «продлили» в гостиную, тем самым объединив эти два пространства по смыслу. Ширина стойки 70 см, здесь с комфортом размещаются четыре человека.
Обратите внимание на подвес над стойкой, который дополняет контрастные черные фурнитуру и светильники. Все освещение в квартире «теплое» — 3000 К.

Зону отдыха хотелось сделать уютной, на контрасте с технологичной кухней. Поэтому диван Саннес от divan.ru заказали сочно-терракотовый, заполнили подушками, постелили фактурный ковер Дерби.
Товары бренда divan.ru
Спальня
«В спальне создали акцентную стену из молдингов, разместив их вертикально и с разным шагом, а после покрасили в темно-бордовый цвет. Получилось что-то вроде барельефа, но с минимальным бюджетом», — рассказывает дизайнер.
Центральное место в комнате заняла кровать Лайтси 160 от divan.ru. Подъемный механизм позволяет хранить во внутреннем ящике постельное белье. Шторы блэкаут повторяют цвет обивки кровати и создают камерную атмосферу.
Товары бренда divan.ru
Шкаф-купе «в потолок» разместили в нише: открытые полки, выдвижные ящики и вешалки систематизируют хранение личных вещей. Стеклянные раздвижные двери в черном профиле создают пару с трековой системой освещения, добавляя геометрии в пространство спальни.
Санузел
«Помимо ванны стандартного размера, умывальника и унитаза с инсталляцией, в санузле мы выстроили фальшстену из влагостойкого ГКЛ. В получившейся нише разместили пенал для гладильной доски. Дополнительными местами для хранения выступают тумба под раковиной и открытые полки с подсветкой. Здесь также нашли место для стирально-сушильной машины», — рассказывает автор проекта.
Прихожая
Входную зону отделили от гостиной, установив поперек распашной шкаф. Видимый торец шкафа оформили как нишу с полками. В нишу на входе в квартиру встроили шкаф с открытой вешалкой и сиденьем, которое тоже используется как место для хранения. Конструкцию сопроводили подсветкой, внизу оставили место для обуви. Напротив повесили зеркало.
Автор проекта
Дизайнер-архитектор Иван Чернечков (@chernechkov_apx, сайт, телеграм-канал).
Хотите опубликовать свой проект в нашем блоге?
Пишите на roomtour@divan.ru
Форматы, жанры, на каких условиях >>














































