В этом доме будет жить семья из трех человек: супруги с пятилетней дочкой, а также общий любимец — кот Александр (ласково Шурик). Пространство организовали таким образом, чтобы у каждого члена семьи было свое место для уединения и отдыха. Дом получился уютный и функциональный, с продуманной эргономикой. Заглянем в гости.

Место: п. Отрадное, Воронежская обл.
Объект: дом 160 кв.м
Высота потолков: 3 м
Автор проекта: дизайнер Анастасия Воронина
Автор фото: Анастасия Кобелева
Бюджет: 7 млн рублей
Реализация: 2023 год
Что просили заказчики
- Современный интерьер, сочетающий оттенки графита и бежевого.
- Продумать удобные зоны хранения.
- Обустроить санузлы, в которых уже была разводка сантехники от строителей.
Логика планировки
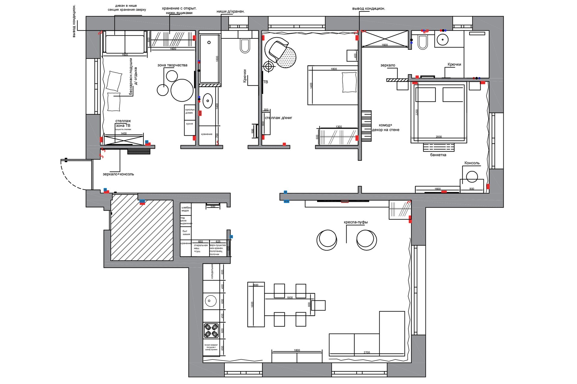
Одноэтажный дом приобрели с черновой отделкой, перепланировку не делали. Здесь есть просторная кухня-гостиная, мастер-спальня с собственным санузлом, детская спальня и отдельная игровая.

Кухня-гостиная
Комната площадью 42 кв.м разделена на две зоны: кухню с островом и обеденным столом, а также гостиную для отдыха и приема гостей. По правую руку от гарнитура находится вход в кладовку-постирочную — благодаря использованию скрытых дверей он «растворяется» в пространстве.
Кухонный гарнитур включает всю необходимую бытовую техник, а шкаф-витрина у окна визуально облегчает конструкцию. Подсветка внутри служит дополнительным источником света в вечернее время. В простенке между двумя окнами спроектировали шкаф высотой до потолка с антресолями.
Обратите внимание: фартук гарнитура выложен керамогранитом из той же коллекции, что и основная плитка на полу — таким образом избежали визуального шума в оттенках и фактурах.
Прием: стену за телевизором в гостиной сделали акцентной — геометрия реек из ЛДСП и цельный мебельный лист под камень задают динамику в этой зоне. Тумбу под ТВ, переходящую в стеллаж и шкаф для хранения, изготовили из тех же вариантов ЛДСП.
Угловой диван Спейс от divan.ru в гостиной — место притяжения всей семьи. Он удобный и стильный, с мягкими и обтекаемыми формами. Обожаю divan.ru за огромное количество тканей и расцветок — это крайне важно при детальной проработке проекта с обилием полутонов и фактур.
Товары бренда divan.ru
Мастер-спальня
«Основной задачей в организации спальни было создание умиротворенного пространства для отдыха и расслабления после рабочего дня. Шоколадные оттенки в текстиле и фактурная штукатурка на стенах дополняют друг друга, мягкая подсветка и шторы блэкаут превращают комнату в камерное место для уютных вечеров», — рассказывает автор проекта.
Мастер-санузел
Для отделки санузла при спальне использовали керамогранит в темных серых оттенках. Местом для хранения здесь служит тумба под раковиной с выдвижными ящиками и открытая полка над унитазом. Акценты расставили графитовым оттенком смесителей, профиля душевой и полотенцесушителя.
Обратите внимание на разные сценарии освещения, которые из камерного теплого света переключаются на дневной яркий.
Детская спальня и игровая
Спальню для девочки превратили в комнату принцессы: на стенах использовали обои с переливом, за изголовьем кровати Молсон от divan.ru установили панель в форме полукруга с подсветкой. Форму полусферы задействовали также в дизайне шкафа и прикроватного столика. Теплый оттенок розового создает в комнате уют и девичью атмосферу.
Деталь: кант на портьере «продолжили» на стене в виде окрашенного в тот же тон потолочного карниза. Прием объединил пространство комнаты и подчеркнул высоту потолков.
Товары бренда divan.ru
Игровую комнату решили отделить от спальни: здесь девочка проводит все свое свободное время. Компактный диван Слипсон Мини от divan.ru установили у окна, его можно разложить в спальное место.
Обратите внимание на рисунок на обоях — маленькие лисички создают в комнате атмосферу непринужденного детства.
Прихожая
Прихожая встречает своих хозяев светлым интерьером и ярким освещением. Реечная стена отвечает во входной зоне за эффект динамики. Крупноформатный керамогранит на полу оттеняет цвет стен и практичен в использовании.
Основной санузел
В основном санузле для отделки использовали три типа керамогранита: акцентная гофрированная вставка у зеркала и на полках, керамогранит с фактурой камня и основное бежевое покрытие на полу и стене. Санузел оснащен полноценной ванной, вместительной подвесной тумбой под раковиной, шкафом для хранения банных принадлежностей. Круглое зеркало с подсветкой, подвесной и точечные потолочные светильники отвечают здесь за различные сценарии освещения.
Автор проекта
Дизайнер Анастасия Воронина (+7 920 408-74-54, anastasiyazolotareva@inbox.ru, @zolotareva.interior).
Хотите опубликовать свой проект в нашем блоге?
Пишите на roomtour@divan.ru
Форматы, жанры, на каких условиях >>





















































