Первое, что встречает гостя при входе в эту студию — вид из панорамного окна, создающий ощущение простора и свободы. Посмотрим, как нестандартно распорядились небольшой площадью этого объекта.

Место: г. Москва, ЖК «Вау»
Объект: студия 30 кв.м в новостройке
Высота потолков: 2,85 м
Автор проекта: дизайнер Алсу Петрина
Стилист: Екатерина Шаповалова
Автор фото: Евгений Гнесин
Реализация: 2025 год
Что просили заказчики
- Многофункциональное и стильное пространство под сдачу в аренду.
- Отдельную зону для сна.
- Ощущение «воздуха» на небольшой площади.
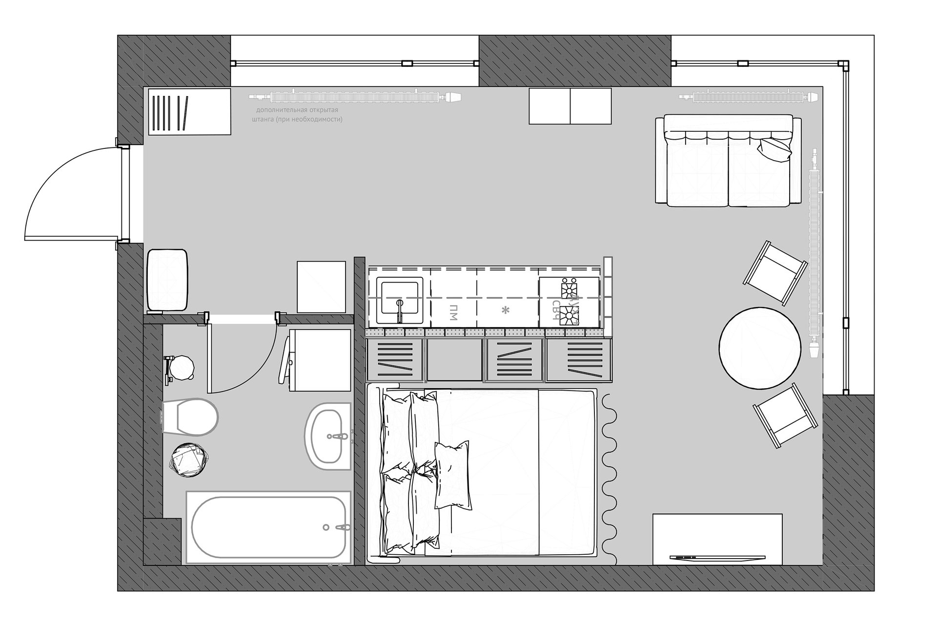
Логика планировки
Студию площадью 30 кв.м приобрели с готовым ремонтом от застройщика. Особенность объекта — угловое панорамное остекление. «Планировка построена на последовательном раскрытии видов, — рассказывает дизайнер. — Первый акт — воздух. При входе взгляд устремляется сразу сквозь квартиру, к огромному окну и московскому пейзажу. Второй акт — фокус. Сделав несколько шагов, вы оказываетесь прямо напротив кухни-витрины с фартуком из прозрачных стеклоблоков. Третий акт — функциональность: удалось разместить и зону гостиной, и комфортное спальное место за шторой».
Общая концепция
Фартук и торцевая перегородка кухни полностью выполнены из прозрачных глянцевых стеклоблоков. «Стеклоблоки — главный материал этого проекта и эффектный акцент, — рассказывает дизайнер. — Они радикально меняют восприятие: ловят солнечных зайчиков, искрятся вечерним светом от ламп, визуально удваивают пространство, создавая сложные оптические иллюзии и бесконечные отражения. Это постоянный праздник игры света на небольшом метраже».
Отделку стен и напольное покрытие оставили от застройщика. Матовый цвет стен выступает нейтральным фоном, который оттеняет игру света и фактур главного объекта. Дубовая инженерная доска рассеивает теплый свет, не конкурируя с блеском стекла.
Зона кухни
«Проходная кухня — архитектурная доминанта и центральный арт-объект пространства. Она — не просто функциональный элемент, а световой маяк и визуальный магнит, который перехватывает внимание и задает тон интерьеру. Прозрачность и игра света решают ключевую задачу: наполнить квартиру “воздухом”, не перегружая ее глухими перегородками. Глянцевая поверхность ловит и преломляет лучи солнца, создавая динамичные световые сценарии в течение всего дня».
Зоны сна и отдыха
Обеденная группа отделяет гостиную от кухни. Складные стулья на металлическом основании с прозрачными глянцевыми сиденьями тоже подчинены идее легкости и экономии пространства. Их можно убрать, когда они не нужны, а «невидимый» силуэт не перегружает интерьер.
Диван Нумо-Мини от бренда divan.ru расположили у окна. Благодаря ярко-желтой обивке в квартире всегда солнечное настроение. А при необходимости диван раскладывается в полноценное спальное место. Черный металлический стеллаж Бенсон смотрится легко и не загромождает пространство.
Товары бренда divan.ru
«За стеклянной перегородкой раскрывается не менее продуманная спальня, отделенная легкой шторой. Она демонстрирует, как можно совместить эстетику с максимальной практичностью, оставаясь воздушной и незагроможденной, — продолжает дизайнер. — Спальная зона спроектирована как многослойная система хранения, где ни один сантиметр не пропадает зря, но все остается невесомым на вид. Кровать Далти в обивке из уютного велюра тоже заказали в divan.ru».
Обратите внимание: сбоку от кровати расположена гардеробная, скрытая за дверью-зеркалом в полный рост. Зеркало отражает свет из окон и визуально удваивает пространство. Внутри находится модульная система хранения с универсальными креплениями, которые дают возможность адаптировать пространство под текущие нужды и количество вещей жильцов.
Рядом со спальной зоной стоит лаконичная тумба-трансформер Аксель, которая превращается в рабочий стол. Стоит повернуть столешницу, и домашний офис готов к работе.
Товары бренда divan.ru
Прихожая
Нарочито простая и лаконичная мебель на входе в квартиру позволяет главным объектам — окну и кухне — оставаться в фокусе. Для верхней одежды и обуви здесь предусмотрена прихожая Бенсон от divan.ru, комод и обувница с мягким сиденьем.
Санузел
В санузле всю отделку оставили от застройщика, добавили только зеркальный шкаф над раковиной и шкаф над инсталляцией.
«Целиковая перегородка из глянцевых стеклоблоков — смелое решение, которое стерло границы между кухней и спальной зоной, оставив лишь световую связь. При этом спальня стала образцом интонационного подхода к хранению, где каждый элемент многофункционален и трансформируем. Пространство не просто зонировано — оно театрально и умно. Сценарий вашего движения по нему выстроен: от масштабной картины за окном к камерному, но не менее впечатляющему виду на сияющую, искрящуюся кухню. Это история про игру света, чистую магию материалов и безупречную эргономику, спрятанную за фасадом легкости», — подводит итог дизайнер.
Автор проекта
Дизайнер Алсу Петрина (профиль в «Телеграме», сайт).
Хотите опубликовать свой проект в нашем блоге?
Пишите на roomtour@divan.ru
Форматы, жанры, на каких условиях >>



































