Эту малогабаритную квартиру в новостройке оформила дизайнер Юлия Гришина. Главной задачей было разработать эффективный инвестиционный проект. Посмотрим, что получилось.

Место: г. Москва, ЖК «Левел Причальный»
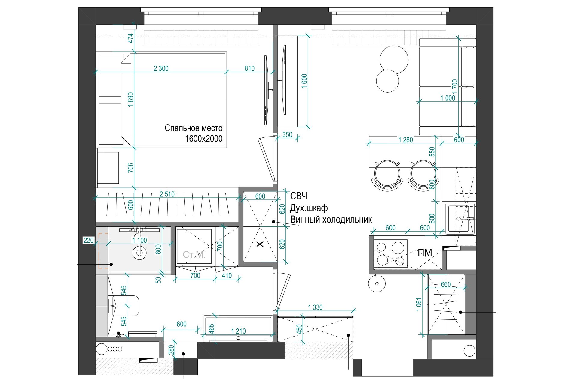
Объект: евродвушка 36 кв.м
Высота потолков: 3 м
Автор проекта: дизайнер Юлия Гришина
Декоратор: Мария Маркус
Автор фото: Егор Кодяков
Бюджет: 4,5 млн рублей
Реализация: 2025 год
Что просили заказчики
- Создать небанальный интерьер, который будет выгодно выделять квартиру среди аналогичных предложений в данном ЖК.
- Максимально эффективно использовать пространство, продумать зоны для отдыха, работы и хранения.
Логика перепланировки
Планировка от застройщика была незначительно изменена. Все мокрые зоны остались на прежних местах. Для кухонного гарнитура выстроили ниши, площадь санузла увеличили за счет коридора, а в спальне организовали гардеробную.

Кухня-гостиная
Кухонный гарнитур выполнен в светлом теплом оттенке, верхние фасады оснащены антресолями с матовым черным стеклом. Пеналы со встроенной техникой расположены на противоположной стене и встроены в нишу. В кухне есть все необходимое: индукционная плита на три конфорки, встроенная вытяжка, посудомоечная машина на 45 см, фильтр для воды и измельчитель. В пеналах находятся холодильник, винный и духовой шкафы, а также микроволновая печь.
Обратите внимание: столешница гарнитура плавно переходит в барную стойку, отделяющую кухню от гостиной. Над стойкой расположен эффектный светильник красного цвета.
В маленькой гостиной важно было разместить диван напротив ТВ-зоны. Выбор пал на модель Льери Мини от divan.ru. Диван органично вписался в интерьер, был быстро изготовлен и прилично сэкономил бюджет. Приятным бонусом стало наличие спального места при таких небольших габаритах.
Товары бренда divan.ru
Спальня
Для отделки стен в комнатах использовали краску, а на полу уложили кварц-винил — практичный материал, особенно для арендного жилья. Стену за изголовьем кровати покрыли декоративной штукатуркой с эффектом замши. Вертикальные «разделители» — черный металлический профиль, «встроенный» в штукатурку.
Мягкие кровати бренда divan.ru
В спальне установлена двуспальная кровать и большой шкаф-купе. «Принято считать, что черный цвет уменьшает пространство и что нельзя использовать темные оттенки в маленьких помещениях, но это не так, — комментирует дизайнер. — Важно, где и как именно он используется, на каких поверхностях и текстурах. В нашей спальне темный цвет, наоборот, увеличивает пространство благодаря расположению глянцевой поверхности напротив окна».
Прихожая
Для отделки пола во входной зоне и в санузле использовали керамогранит. В прихожей расположен шкаф для верхней одежды, а также отдельный шкаф для обуви.
Санузел
В небольшом санузле расположена душевая с поддоном в строительном исполнении, а также хозблок со стиральной и сушильной машинами. Для хранения предназначены встроенный стеллаж для косметики и большая тумба с раковиной, дополненная вместительными выдвижными ящиками.
Автор проекта
Дизайнер Юлия Гришина (@grishina_designer, сайт, grishina@nxt.ru).
Хотите опубликовать свой проект в нашем блоге?
Пишите на roomtour@divan.ru
Форматы, жанры, на каких условиях >>






























