Философия этого проекта — интерьер в стиле минимализм как нейтральный холст. Студия предназначена для сдачи в долгрок, а концепция ориентирована на представителей интеллектуальных профессий, которые воспринимают жилье как базовый, умиротворяющий фон для жизни и творчества.

Место: г. Москва, р-н Преображенское, ул. Суворовская
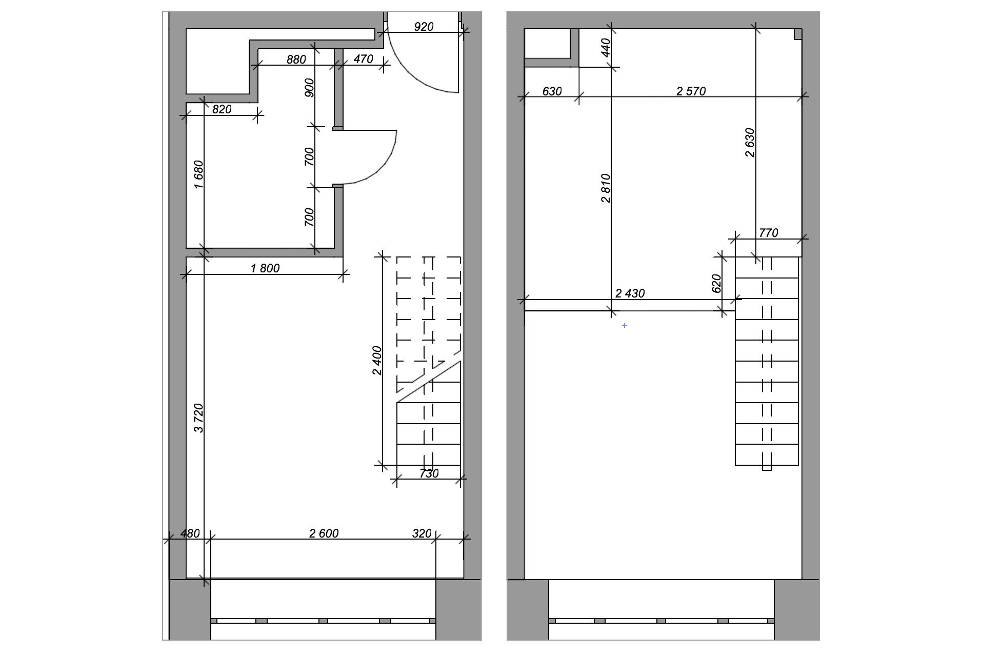
Объект: студия 20 кв.м + антресольный этаж 6 кв.м
Высота потолков: 4 м
Автор проекта: дизайнер Елена Гаврилова
Автор фото: Дарья Мягкая
Бюджет проекта: 600 тысяч рублей на комплектацию и оснащение
Реализация: 2025 год
Студия находится в здании 1890 года постройки, спроектированном в стиле индустриального модерна, в историческом районе Москвы — Преображенское. До революции здесь располагалась шерстоткацкая фабрика Торгового дома «А.И. Червяков и К», основанного в 1890 году. С 1923 года — ткацко-механическая фабрика трудового товарищества «Самоткач», затем — фабрика № 3 Текстильно-галантерейного треста. Теперь это лофт в стиле индустриального модерна.

Сюда часто приводят групповые экскурсии туристов, они фотографируются на фоне дома. В ходе обустройства постоянно наблюдала за ними под окнами. Приятно ощущать, что работаешь в историческом здании
Что просили заказчики
- Комфортное пространство для сдачи в долгосрочную аренду.
- Интерьер для отдыха, без лишнего визуального шума.
- Долговечная комплектация/мебель/интерьер без частого обновления и с оснащением «под тапочки».
- Визуально увеличить пространство.
Логика планировки
Объект был приобретен с готовым ремонтом: стены покрашены в бежевый цвет, установлены розетки, двери, выложена плитка. Была лестница, но без поручня и ограждения.
Сильная сторона пространства — арочное окно высотой более трех метров, обрамленное старой кирпичной кладкой. Сложность представляла небольшая высота первого яруса под антресолью — всего 2,07 м. Низкий потолок создавал в этой зоне ощущение тесноты. Также при входе в квартиру в глаза сразу бросалась массивная лестница. Эти моменты предстояло обыграть дизайн-решениями, не прибегая к ремонту.
«Долго не могла придумать конструктив ограждения, — делится автор проекта. — Частые варианты из Pinterest в виде вертикальных или горизонтальных прутьев мне не нравились — они создавали ощущение клетки. В итоге выбрала классический рисунок с диагональными линиями, который встречается в городской среде, и укрепила конструкцию в трех местах (угловое ограждение)».
Несмотря на небольшую площадь, в студии реализованы различные сценарии времяпрепровождения: принимать пищу, работать и отдыхать можно как за столом, так и на диване с придиванным столиком, или же перенести столик на антресольный этаж.
Нейтральная цветовая база с акцентами — универсальное решение для аренды. Светлая серо-бежевая основа создает сбалансированный интерьер, который визуально расширяет пространство и легко адаптируется под вкус арендатора. Для зрительного увеличения пространства использовали:
- крупногабаритную мебель (диван и кухня) в цвет стен;
- светлые оттенки и минимум визуального шума. Никаких открытых стеллажей;
- большие зеркала в зонах с низким потолком: фасады шкафа под зоной антресоли (коридор выглядит в два раза шире) и большое зеркало с подсветкой в санузле.
Чтобы минимизировать бюджет на наполнение объекта, цвет стен сохранили от застройщика, адаптировали расстановку мебели под уже существующие розетки и выводы — без затрат на перенос коммуникаций, подобрали встроенную технику со скидками на маркетплейсах.
Кухня-гостиная
Зона кухни
Места под гарнитур в студии немного, поэтому оснащение включает только необходимое: встроенный двухкамерный холодильник, мойку, духовой шкаф с функцией СВЧ, варочную панель. Рабочая зона миниатюрная — между мойкой и варочной панелью.
Для хранения задействован каждый сантиметр пространства:
- под духовым шкафом — выдвижной ящик высотой 15 см, куда можно спрятать плоские предметы: разделочную доску, фольгу для запекания, салфетки под приборы;
- над духовым шкафом расположен второй выдвижной ящик для столовых приборов;
- под мойкой — встроенный фильтр для воды;
- над холодильником есть ниша для контейнеров и противня;
- посуду разместили в специальном шкафу.
Зона гостиной и столовой
Визуальный акцент в этой части студии сместили на графичную обеденную группу: круглый стол Тюлип 80 и пару стульев Маргарита. Легкие, тонкие формы, черные линии — элегантный акцент вместо тяжелых масс.

Для зоны отдыха искали компактный раскладной диван с обивкой в цвет стен, чтобы мебель «растворилась» в пространстве и не создавала ощущения тесноты и громоздкости. Подходящий нашли у производителя divan.ru — это диван Нумо.
Товары бренда divan.ru
Основное освещение в студии — плоские потолочные светильники. Для вечернего освещения есть подсветка у вытяжки и черный торшер возле дивана.
Спальня
В студии применили интересный прием — зонирование цветом. Два яруса — два настроения. Первый (гостиная, кухня) — в бежевом и белом цвете. Спальня на втором оформлена в глубоком темно-сером цвете. Результат — квартира воспринимается не как студия, а как полноценное двухуровневое пространство с настроением и логикой:
- четкое функциональное разделение зон: светлая зона первого яруса — для активности, общения, дневной жизни. Темная — для уединения, сна, ощущения уюта и тишины;
- визуальное разнообразие: квартира ощущается как более просторная и интересная, даже при небольшой площади.
Высота антресольного этажа всего 2 м, к тому же потолок округлый, и высота к углам уменьшается. Шкаф подобрали готовый, высотой всего 141 см. Рядом — комод из той же серии. Для дополнительного хранения есть ящик под кроватью, куда помещаются обувные коробки или сезонные вещи.
Входная зона
Зеркальный шкаф в прихожей зрительно расширяет пространство. Высота шкафа подогнана под высоту основания лестницы, и стоит он на стыке напольных покрытий — ламината и плитки в коридоре, визуально разделяя пространство на зоны. Глубина шкафа — 40 см, такая глубина подобрана, чтобы выставить его на один уровень с соседним комодом. Визуально выглядит как единая система хранения.

Санузел
Особенность санузла — низкий потолок под антресолью (2,07 м). Большое зеркало (120 х 80 см) с подсветкой визуально вытянуло помещение в высоту. Полотенцесушитель выбрали с полкой, чтобы была возможность повесить сушиться мелкое белье — не придется лишний раз раскладывать сушилку. Умывальник от застройщика был низко расположен, его поменяли на раковину со столешницей под стиральную машину.
Смеситель и душевую систему оставили от застройщика. Для хранения есть тумба под раковиной и шкаф-пенал с удобными полками и встроенной корзиной для белья.
«Интерьер получился сдержанным, благородным, аристократичным — без лишнего визуального шума, — подводит итог дизайнер. — Он не надоедает, легко адаптируется под предпочтения арендаторов и выглядит дороже своего бюджета».
Автор проекта
Дизайнер Елена Гаврилова (телеграм-канал, brandsun@yandex.ru, +7 977 174-18-30).
Хотите опубликовать свой проект в нашем блоге?
Пишите на roomtour@divan.ru
Форматы, жанры, на каких условиях >>










































