Владельцы этой квартиры — молодая семейная пара, люди творческие и экспрессивные. Она — театральный художник-постановщик, он — веб-дизайнер, оба увлекаются музыкой: жена профессионально играет на скрипке, муж поет и сочиняет музыку. В своей квартире супруги просили создать спокойную обстановку, которая будет служить фоном для их творческих идей. Смотрим, что получилось.

Место: г. Санкт-Петербург, ЖК «Аквилон Zalive»
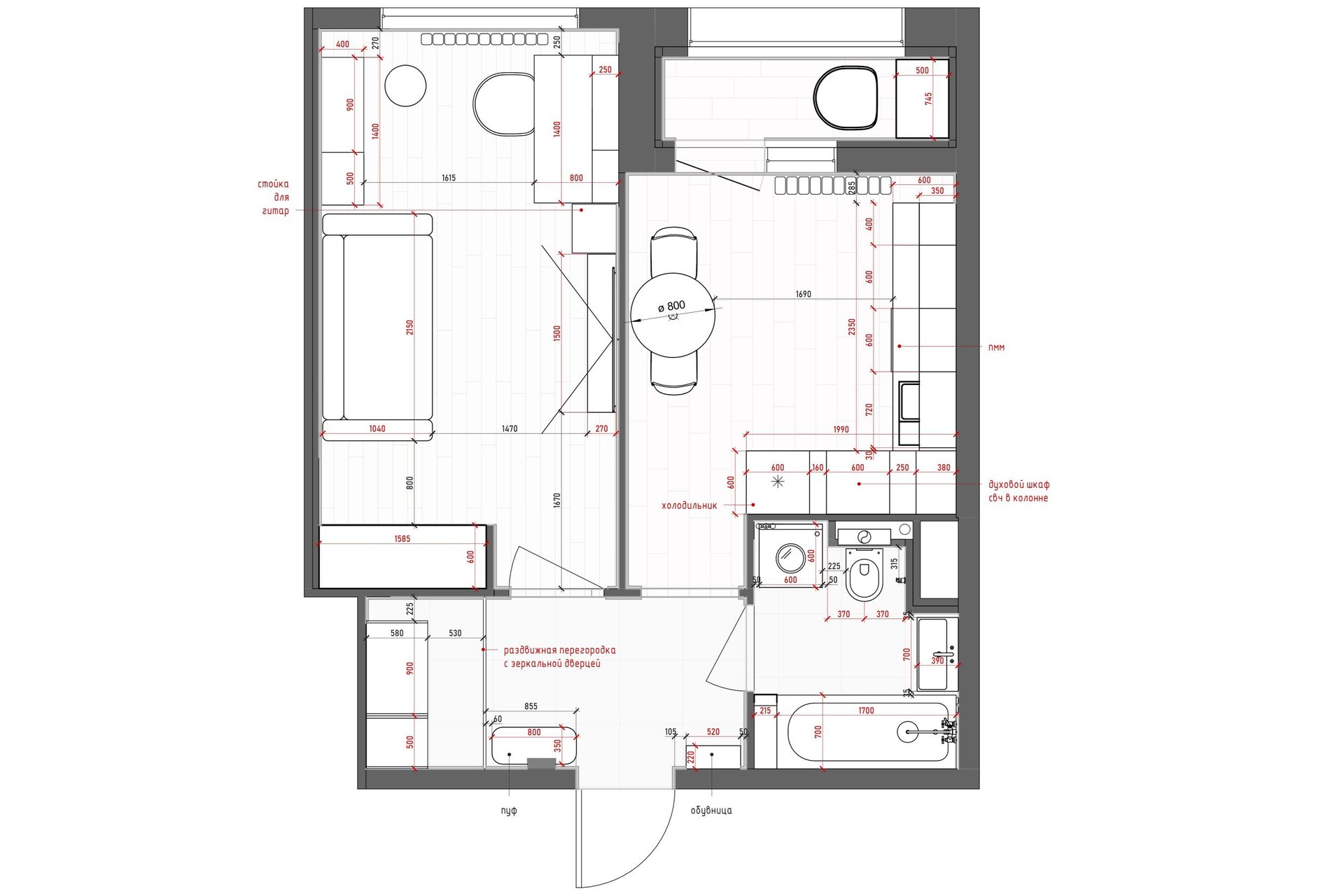
Объект: однокомнатная квартира 39 кв.м
Высота потолков: 2,74 м
Кто здесь живет: молодая супружеская пара
Автор проекта: дизайнер Александра Ляпкало
Автор фото: Дмитрий Модестов
Бюджет проекта: 4 млн рублей
Реализация: 2024 год
Что просили заказчики
- Современную обстановку с уклоном в минимализм, «как в отеле». Базовый монохромный интерьер в оттенках серого с акцентами в виде деревянных текстур и черных аксессуаров.
- Универсальный дизайн, который подойдет для продажи в будущем (в обозримом будущем заказчики планируют сменить жилье).
- Рабочее место для заказчика, туалетный столик для заказчицы, полки для большого количества книг и универсальный диван-кровать.
Логика планировки
На момент покупки объект был в предчистовой отделке. Это индивидуальный проект от застройщика, исходная планировка устраивала заказчиков. Перепланировку не делали.
«В квартире большие окна — это плюс, — рассказывает дизайнер. — Еще одно преимущество планировки — большая прихожая, редкое явление для небольших квартир, которое позволило нам спроектировать отдельную гардеробную. Недостаток объекта — в неудобном расположении коммуникаций. Было сложно эргономично и комфортно расставить все оборудование в ванной, соблюдая технические нормы и не теряя визуальную составляющую».

Концепция проекта
Стилистика проекта — современная, с уклоном в минимализм. В интерьере использованы базовые, спокойные оттенки в сочетании с фактурой дерева и черными деталями. В нескольких зонах установлены вертикальные рейки под покраску — для зонирования и визуального увеличения высоты потолка. В прихожей и спальне предусмотрены крупноформатные зеркала для визуального расширения пространства.
Гостиная-спальня
В проекте одна жилая комната, она используется как спальня и гостиная.
На пол уложили кварц-винил под дерево. Изначально в качестве напольного покрытия планировали инженерную доску, но чтобы оптимизировать бюджет, решили ее заменить. На стенах во всей квартире — бесшовные флизелиновые обои: гладкие, без фактуры. От покраски отказались, чтобы удешевить подготовку стен. Потолки натяжные с теневым профилем по периметру.
Проблема и решение: в проекте был запланирован черный микроплинтус, для монтажа которого необходимо было предусмотреть компенсационный зазор между полом и стеной. Но рабочие зазор не сделали, и кварц-винил был уложен вплотную. Переделка обошлась бы долго и дорого, поэтому пришлось срочно искать альтернативное решение. Дизайнер закупила металлические уголки почти такого же размера, их покрасили в черный цвет и наклеили на стык стены и пола. Результат визуально ничем не отличается от микроплинтуса, а по стоимости получилось даже бюджетнее.

«Расстановку мебели в комнате клиенты придумали заранее по своим потребностям, — рассказывает дизайнер. — Так как это единственная жилая комната в квартире, важно было сделать ее универсальной: чтобы диван превращался в удобную кровать, на которой можно смотреть кино, а в сложенном виде выглядел презентабельно, без намеков на спальное место. И такой диван нашелся в divan.ru».
Заказчики переживали, что будет неудобно спать на диване, поэтому искали во многих магазинах: сравнивали, лежали. Но в итоге остановились на модели Сваут от производителя divan.ru. Обивку подбирали с расчетом, чтобы она была приятная тактильно и легко чистилась. Ткань Silver Danel подошла идеально и по цвету, и по характеристикам.

Справа от окна расположили рабочее место. Рабочий стол от ZAMM вписали в интерьер по просьбе заказчиков — супруг давно его выбрал. У противоположной стены поставили туалетный стол для супруги, совмещенный с книжным стеллажом. Получилось, что стеллаж визуально отделяет зону отдыха.
Все системы хранения изготовили на заказ. У клиентов много вещей и книг, а пространство небольшое, поэтому не хотелось загромождать его. У входа в комнату выстроили нишу с большим встроенным шкафом до потолка. Светлые фасады «растворили» на фоне стены.
Товары бренда divan.ru
«Во всех своих проектах я делаю большой упор на освещение, так как оно создает атмосферу и настроение, влияет на психологическое состояние, — рассказывает дизайнер. — В данном случае проект монохромный, и освещением можно сделать интерьер "многослойным". Трековые поворотные светильники на потолке — общее освещение. Над диваном светодиодные бра с теплым светом для вечернего отдыха. RGB-подсветка в нише работает от пульта, можно менять цвет и интенсивность. Это было одним из желаний заказчиков при проектировании интерьера. За счет такой подсветки можно создать любое настроение, а в однотонном минималистичном интерьере она создает яркий акцент и выглядит стильно».
Кухня
На пол в кухне использовали керамогранит под дерево, так как он устойчив к влаге и долговечен. На кухонном фартуке мелкоформатная глянцевая плитка. Помещение выделено исключительно под кухню и обеденную группу. Две стены занимает угловой гарнитур высотой в потолок. По длинной стене расположена зона для готовки, по короткой — встроенный пенал с техникой и хранением.
В обеденной зоне установили раскладной стол диаметром 80 см и пару мягких стульев на металлическом основании.
Из кухни есть выход на лоджию. Ее утеплили, чтобы в будущем вынести туда рабочее место для заказчицы.
Прихожая
На пол в прихожей уложили керамогранит. Реечные панели под покраску дублируют вертикальные линии на раздвижной перегородке, за которой скрыт гардероб. Щиток с самого начала решили оставить на том же месте, чтобы не тратить деньги на его перенос. Изготовили для него небольшой шкафчик в цвет реек.
Вешать крючки или ставить напольную вешалку супруги не хотели, но у заказчицы в силу ее профессии был манекен для примерки театральных костюмов. Решили поставить его у входной двери. Иногда манекен служит вешалкой, но его главная роль — быть акцентом, разбавляющим монохромный интерьер и напоминающим о творческой жизни заказчиков.

Помимо общего освещения, во входной зоне продумали дополнительное, декоративное. Заказчики включают его в вечернее время суток или просто для красоты. Двери со скрытым коробом в черном профиле вписываются в концепцию минимализма и не выделяются на общем фоне.
Санузел
Клиенты хотели ванную «как в отеле», чтобы интерьер успокаивал и ничто не раздражало глаза. Поэтому все стены отделали керамогранитом серого цвета, сделав лишь одну акцентную зону за тумбой с раковиной — там мелкоформатная акцентная плитка, такая же, как на кухонном фартуке. На полу керамогранит одним контуром с прихожей. Все смесители в акцентном черном цвете. В потолочной нише и в нише для ног под ванной установили ночную подсветку.
Системы хранения изготовили на заказ, во всю стену. За фасадами спрятали коллектор, счетчики и большое количество полок. Дополнительное место для хранения — тумба под раковиной.
Автор проекта
Дизайнер Александра Ляпкало (@lyapkalo_des, сайт, телеграм-канал, группа во «ВКонтакте», +7 911 280-99-95, hi@lyapkalodes.ru).
Хотите опубликовать свой проект в нашем блоге?
Пишите на roomtour@divan.ru
Форматы, жанры, на каких условиях >>

































