Владельцы этой квартиры просили дизайнеров сохранить черно-белое напольное покрытие в виде шахматной доски — именно оно вдохновило добавить в интерьер мотивы из «Алисы в Стране чудес». Так здесь появились зайцы, коты, розовый велюр и смелые акценты в стиле поп-арт. Заглянем в гости.

Место: г. Санкт-Петербург
Объект: трехкомнатная квартира 70 кв.м
Высота потолков: 2,95 м
Авторы проекта и фото: студия «Постели Ковёр»
Бюджет: 4,5 млн рублей
Реализация: 2025 год
Заказчики приобрели эту квартиру в качестве инвестиционного проекта для посуточной аренды гостям и жителям Северной столицы.
Что просили заказчики
- Предусмотреть суммарно шесть спальных мест с учетом удобства и приватности для всех жильцов.
- Сделать ремонт без капитальной перепланировки.
- Продумать системы хранения.
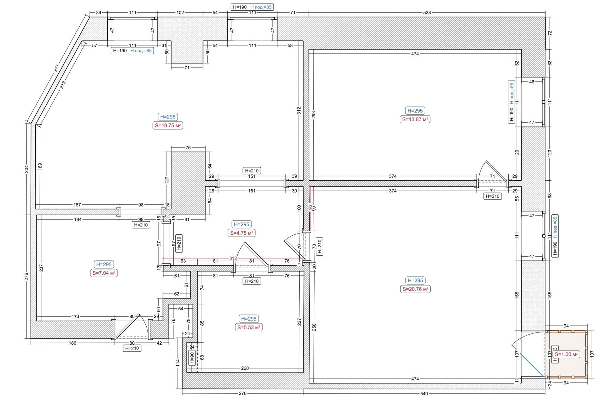
Логика планировки
При площади чуть больше 70 кв.м в квартире была только одна изолированная комната. Основной проблемой стала проходная комната (20 кв.м) — в ней требовалось разместить как можно больше спальных мест. Дизайнеры разделили пространство стеклянной перегородкой. Это позволило изолировать зону с кроватью от гостиной, частично обеспечив приватность для гостей.
«Когда заказчики обратились к нам, они сразу отметили, что менять напольное покрытие не планируют, — вспоминают дизайнеры. — В квартире уже была плитка в формате шахматной доски в зоне коридора и кухни. В основных комнатах оставался ламинат. Увидев эту шахматную плитку, мы поняли, что интерьеру необходима легкая ирония, немного дерзости. Так появились яркие акценты: постеры с забавными животными, насыщенные розовые и глубокие синие оттенки, ковры с принтами и даже цветные плафоны на люстре в гостиной. В итоге шахматная доска на полу, современная мебель и акцентный декор заиграли в едином ритме — получился смелый, но гармоничный интерьер.
Сам ремонт вышел весьма аскетичным. В основных комнатах мы освежили стены: выровняли их, поклеили новые обои под покраску, заменили двери и плинтусы. В проходной комнате разобрали многоуровневый гипсокартонный потолок для установки закладной под перегородку. Капитальные изменения пережил только санузел. Но мокрые точки остались на прежних местах».
Кухня
Все коммуникации для кухни остались на прежнем месте — в ходе ремонта лишь вывели несколько дополнительных розеток на фартук. Дом газифицирован, газовую плиту оставили.
Квартира проектировалась под посуточную аренду, поэтому кухонный гарнитур небольшой, но укомплектован всем необходимым: плитой на две конфорки, духовым шкафом, посудомоечной машиной, микроволновой печью, чайником и кофемашиной.
Обратите внимание: у гарнитура нет верхнего яруса — бокалы и тарелки хранятся в буфете Амели от divan.ru, для декора и подручных предметов есть подвесная полка, а кухонная утварь размещена в нижних модулях.
Гостиная
Гостиная зона получилась компактной. Она расположена рядом с кухней и столовой группой, что создает единое пространство для общения. Здесь можно собраться большой компанией — актуально, если в город приезжает несколько семей, которые снимают квартиру вместе. В гостиной поставили раскладной диван — при необходимости он превращается в дополнительное спальное место.
Прием: чтобы оживить монохромный дизайн, в интерьер добавили яркие акценты в виде декора и светильников.
Товары бренда divan.ru
Первая спальня
Эта комната выполняет несколько задач: в ней есть спальная зона, а также гостевая зона с двумя креслами и телевизором — место для отдыха и общения.
Прием: приватность в спальне создали с помощью стеклянной перегородки. Это позволило сделать пространство легким и светлым, а также более функциональным.
Нам важно было выбрать кровать с компактным каркасом. Модель Лайтси от divan.ru подошла как нельзя лучше: она выглядит изящно и не нагружает интерьер. В этой же комнате мы добавили консоль Харис и интересный ковер Brera. Консоль идеально вписалась в интерьер как по размеру, так и визуально.
Товары бренда divan.ru
Маленькая спальня
В квартире есть одна отдельная спальня — здесь установили кровать Динс от divan.ru с ортопедическим матрасом, небольшой комод для хранения вещей и компактную рабочую зону — для тех, кто приезжает в командировку или просто работает удаленно.
Товары бренда divan.ru
Прихожая
«Для посуточной аренды нет необходимости в огромных шкафах, поэтому мы обошлись небольшой гардеробной системой в коридоре и парой комодов, — рассказывают дизайнеры. — Это решение позволило сэкономить бюджет и эффективно использовать пространство, оставив его более свободным и удобным для гостей. Гардеробная система достаточно вместительна для хранения основных вещей, а комоды служат для удобного размещения личных принадлежностей».
Входную группу дополнили стильной черной консолью Могенс от divan.ru. Она понравилась нам своей необычной формой, которая так к лицу этой квартире.
Санузел
В санузле старую отделку демонтировали и убрали перегородку со стеклянными полками. Для пола выбрали широкоформатный керамогранит, а стены оформили керамической плиткой в спокойном оттенке. Установили инсталляцию с коллекторным узлом.
Газовую колонку, прежнее местоположение которой было в ванной, оставили, замаскировав ее за декоративной ширмой. Также добавили тумбу под стиральную машину с накладной раковиной. Для отдельно стоящей ванны установили карниз и предусмотрели влагостойкую штору.
Авторы проекта
Ксения Фомина и Яна Адулас — основательницы студии хоумстейджинга и инвестремонта «Постели Ковёр» (@posteli.kover, сайт, группа во «ВКонтакте», телеграм-канал).
Хотите опубликовать свой проект в нашем блоге?
Пишите на roomtour@divan.ru
Форматы, жанры, на каких условиях >>





















































