Дизайн квартиры-студии 20 кв.м — это всегда компромисс между желаниями и возможностями. Нужно разместить кухню, базовую мебель, продумать зоны для хранения и обеспечить сочетание эргономики и эстетики. Рассказываем, как отремонтировать и обставить квартиру небольшого метража: фото из реальных дизайнерских проектов помогут определиться с планировкой, меблировкой и стилем.

На фото: студия 19 кв.м в г. Кронштадте. Дизайнер: Светлана Горянина; фотограф: Татьяна Никитина
О чем пойдет речь
- Современные тенденции в дизайне студии 20 кв.м
- На что в первую очередь обратить внимание
- Планировка
- Цветовая гамма
- Отделка и материалы
- Зонирование квартиры-студии 20 кв.м
- Выбор стиля
- Организация системы хранения
- Освещение и декор
- Расстановка мебели
- Идеи оформления
- Как спрятать вентиляцию и коммуникации
- Как визуально увеличить пространство
- Полезные советы для экономии места
- Коротко о главном
- Ответы на популярные вопросы
Перечислим основные приемы дизайнеров, цель которых — зрительно скорректировать размеры квартиры-студии и скрыть недостатки планировки:
- Функциональность важнее декора. Акцент на мебель со скрытым хранением, предметы-трансформеры, складные и выдвижные решения.
- Открытое пространство без лишних перегородок. Вместо стен — деление мебелью, шторами, конструкциями из стекла.
- Нейтральная база + акценты. Пол и стены в светлых тонах, цвет — в текстиле, картинах, декоре.
- Микс стилей, но в единой палитре. Допустимы элементы разных направлений в одном интерьере. Например, современного, лофта, сканди.
- Зонирование освещением. Разные сценарии для кухонной, спальной, гостиной и рабочей зон.
- Максимум света. Лаконичные шторы, отказ от тяжелых драпировок, глянец и зеркала, отражающие солнечные лучи.
- Чистые линии и порядок. Минимум мелкого визуального шума: открытых полок, разноцветных коробок, пестрого текстиля.
На фото: дизайн-проект квартиры-студии 20 кв.м в г. Москве. В кадре диван прямой Нумо и кухонный стол Тюлип-2 — все от divan.ru. Дизайнер: Елена Гаврилова; фотограф: Дарья Мягкая
Перед тем как рисовать план и выбирать условный диван, ответьте на несколько вопросов:
- Кто будет жить в квартире? Один человек, пара, семья с ребенком — от этого зависит зонирование.
- Какой у вас образ жизни? Если вы часто готовите или работаете из дома — необходимо обустроить удобное место.
- Как часто здесь будут спать? Поймете, нужна ли полноценная кровать или хватит удобного дивана с хорошим матрасом.
- Сколько систем хранения реально нужно? Одежда, инвентарь для занятий спортом, предметы для хобби, инструменты — все это надо где-то размещать.
- На какую сторону выходят окна? Нужно ли добавить или, наоборот, сократить количество света?
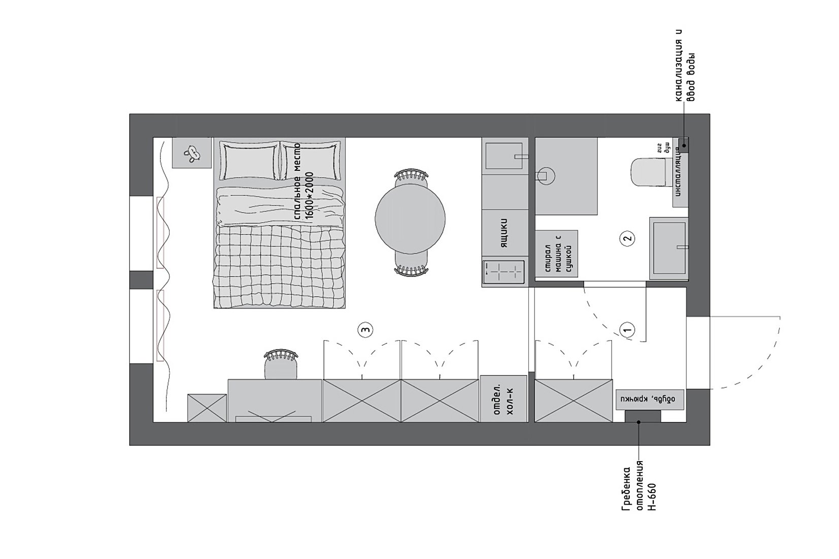
- Где уже есть выводы воды и канализации, где несущие стены, короб вентиляции?
На основе ответов можно делать планировочное решение: сначала функциональные зоны, потом — мебель и стиль.
На фото: студия 22 кв.м, ЖК «Левел Причальный». В кадре кресло поворотное Мэник от divan.ru. Дизайнер: Дарья Старцева; фотограф: Даниил Ковальчук
Сильно зависит от конфигурации пространства:
- Прямоугольное легко зонировать, отделяя части комнаты для разных целей.
- Квадратное разделить сложнее. Но даже маленький «квадрат» снабжают перегородкой, отделяющей санузел.
- Для квартиры неправильной формы универсальных правил нет. Обычно здесь выстраивают / используют имеющиеся ниши, где размещают кровать, шкаф или рабочий стол.
Прямоугольная
Самый простой и понятный вариант. Здесь удобно выстраивать зоны вдоль одной стены или делить пространство на функциональные «полосы». У входа логично разместить прихожую и небольшой гардероб, дальше — кухню, а в глубине комнаты обустроить зону отдыха с диваном или кроватью.
Чтобы квартира не казалась «коридором», используют визуальные акценты: разный цвет стен, локальную подсветку, напольные покрытия, отличающиеся по фактуре. Мебель подбирают компактную, по возможности — трансформируемую: раскладной диван, стол-тумбу, консоль.
На фото: дизайн и планировка студии 20+ м2, ЖК «Кронштадтский 9». В кадре кровать Ингрид-1 от divan.ru. Дизайнер: Евгения Акимова; фотограф: Екатерина Гейц
Изделия бренда divan.ru
Квадратная
Удобна тем, что ее легко сбалансировать по зонам. Пространство можно условно поделить на четыре части: кухню, обеденный уголок, место для отдыха и хранение. Границы обозначают с помощью ковра, светильников и расстановки мебели.
Обеденную группу разумно разместить ближе к кухонному гарнитуру, а кровать или диван — у окна, чтобы в дневное время сюда попадало максимум света. Для хранения подходят шкафы до потолка и закрытые системы над рабочей поверхностью кухни. Они помогают избежать ощущения захламленности.
На фото: планировка и дизайн квартиры-студии 20 кв.м в г. Санкт-Петербурге. Рум-тур, героиня: Виктория Кишко; фотограф: Александра Хлебникова
Сложной формы
Такая студия сначала может показаться неудобной, но именно здесь можно создать интересные сценарии. Нишу используют под компактную спальню с кроватью, встроенным шкафом или рабочим местом. Выступы и «лишние» углы превращают в стеллажи, систему хранения или мини-кабинет.
Важный момент — правильно расставить световые акценты. Нестандартное помещение особенно любит точечную и направленную подсветку. Она помогает сгладить визуальные «переломы» стен и сделать планировку более логичной. А мебель, подобранная строго в размер, позволяет использовать каждый сантиметр и избавляет от пустых зон. Посмотрите, как выглядят 20 квадратных метров в проекте ниже.
На фото: студия 27 кв.м, ЖК «Слава». В кадре диван прямой Ольен и тумба Шелби — все от divan.ru. Дизайнеры: Венера Терегулова и Анна Козлова, студия VIA INTERIOR BURO; стилист: Александра Пыленкова; фотограф: Женя Муравьева
Двухуровневая
Речь о двухэтажном помещении. Удобство такой студии состоит в том, что зонировать самостоятельно почти ничего не нужно. Обычно нижний уровень отводят под кухню, гостиную и рабочее место, а верхний — под спальню и гардероб.
Лестницу делают максимально легкой по восприятию: с открытыми подступенками, на металлическом каркасе или с прозрачным ограждением. Под ней размещают систему хранения, мини-прачечную или устанавливают громоздкий бытовой прибор, которому сложно найти место в малогабаритной квартире.

На фото: двухуровневая планировка на 20 квадратных метрах в студии в г. Москве. В кадре диван прямой Слипсон от divan.ru. Дизайнеры: Татьяна Понамарева и Ольга Елизарова; фотограф: Полина Полудкина
С балконом
Лоджия в маленькой квартире — ценное дополнение к метражу. Если есть возможность согласовать утепление и объединение с комнатой, логично сделать здесь рабочий уголок, зону отдыха с креслом или компактную столовую с барной стойкой. Так жилая часть студии получится более свободной.
Если пространство остается отдельным, его используют для сезонного хранения и как место для расслабления. Легкая мебель, уютный текстиль и пара растений создадут своего рода мини-террасу. Важно продумать утепленные двери и хорошие шторы, чтобы холодный воздух не мешал комфорту.
На фото: студия 26 кв.м в г. Сочи. Хоумстейджер: Анастасия Дубовскова; фотограф: Светлана Шурлова
Изделия бренда divan.ru
Без балкона
Такая студия требует особенно внимательного подхода к хранению. Шкафы и антресоли размещают по периметру, используют подиумы с выдвижными ящиками, кровати и диваны с бельевыми нишами. Любой вертикальный метр становится полезным.
Чтобы компенсировать отсутствие дополнительного пространства, стараются не загромождать комнату 20 м² крупной мебелью. Лаконичный кухонный гарнитур, складные стулья, настенные полки вместо массивных комодов помогают сохранить ощущение воздуха даже в очень компактной квартире.
На фото: студия 19 кв.м в г. Кронштадте. В кадре диван прямой Сваут от divan.ru. Дизайнер: Светлана Горянина; фотограф: Татьяна Никитина
Для одного человека
Живете в одиночку? Планировка может быть более свободной. Часто объединяют спальное и гостевое место: используют удобный раскладной диван или тахту с подушками. Главное — организовать полноценную рабочую зону, особенно если хозяин работает из дома.
Хранение подстраивают под образ жизни: кому-то важен большой шкаф для одежды, а кому-то — стеллажи для книг и техники. Разделение пространства выполняют с помощью света, текстиля, невысоких стеллажей, чтобы не дробить и без того небольшую площадь. На реальных фото ремонта ниже — пример, как обустроить студию 20 кв.м с кухней и необходимой мебелью.
На фотографиях: апартаменты 22 кв.м, ЖК «Берег Яузы». В кадре диван прямой Кела Мини и комплект оснований Бенис 80. Дизайнеры: Нина Василенко и Виктория Дудедро, студия «Инвест Квартира»; фотограф: Екатерина Гейц
Изделия бренда divan.ru
Для семьи
Семейная студия требует максимально продуманной планировки. В первую очередь выделяют отдельное, пусть и очень компактное, спальное место для взрослых — нишу с кроватью или зону за легкой перегородкой. Детский угол организуют у окна, с кроватью-чердаком и системой хранения внизу.
Общая зона — это кухня и небольшой стол, который при необходимости раскладывается. Встроенная мебель, кровати с ящиками, шкафы до потолка и отсутствие лишнего декора помогают поддерживать порядок. Чем проще и функциональнее будут решения, тем комфортнее семья будет чувствовать себя в ограниченном пространстве.
На фото: тумба-трансформер Аксель-1 от divan.ru позволяет быстро убрать рабочее место, превратив его в удобную тумбу
В студии на 20 квадратов дизайн напрямую влияет на ощущение пространства. Чем светлее и спокойнее палитра, тем больше кажется комната. В качестве базы выбирают оттенки белого, светло-серого, бежевого, теплого молочного — они создают ровный фон и не «давят» даже в сочетании с большим количеством мебели.
Яркие цвета используют дозированно: в текстиле, постерах, паре предметов мебели. Это позволяет добавить интерьеру характера и не перегрузить его. Темные акценты размещают точечно — на одной стене, в нижней части кухни, в деталях декора. Важно соблюдать баланс: чем темнее предмет, тем больше вокруг него должно быть света и воздуха.
Цвет также помогает зонировать пространство. К примеру, кухню выделяют более насыщенным оттенком фартука или фасадов, а зону отдыха — мягкой, теплой палитрой. Важно, чтобы все оттенки сочетались между собой и выглядели частью единого сценария, а не набором разрозненных решений.

На фото: студия 27 кв.м, ЖК «Город Дейли». В кадре диван прямой Кейсес от divan.ru. Хоумстейджер: Светлана Немцова; фотограф: Наталья Добудько
Их подбирают в соответствии с выбранным стилем. Комбинация разных фактур — еще один способ зонировать помещение, поэтому заранее продумайте, где и какое оформление хотите.
Стены
Для них в студии 20 кв.м чаще всего выбирают краску или обои под нее. Это позволяет легко освежить интерьер без масштабного ремонта. Предпочтительны матовые или слегка шелковистые покрытия — они мягко рассеивают свет и не подчеркивают неровности. Сложные фактуры и яркие принты используют только локально: на акцентной стене или в нише.
Если хочется добавить объема, подойдут декоративные панели из пластика или дерева. Важно не перегружать ими все стены — достаточно одного-двух акцентов. В зоне кухни используют практичные материалы: моющуюся краску, фартук из плитки, стекла или металла, чтобы стену было легко очищать от загрязнений.
Декор из белой кирпичной кладки уместен не только в лофте, но и в скандинавском, и в современном стилях. Такой прием делает пространство более глубоким.
Потолок
В небольшой студии лучше всего работает простой и светлый. Окрашенный или натяжной, он визуально увеличивает высоту помещения. Сложные многоуровневые конструкции и массивный декор, наоборот, «съедают» пространство и создают ощущение тяжести.
В высоких студиях будет уместно опустить частично — над кухней или прихожей. Это помогает спрятать коммуникации и подчеркнуть логику планировки, не утяжеляя весь объем комнаты.
Пол
Обычно в студии его делают единым на всей площади — это подчеркивает целостность интерьера. Оптимальный вариант — износостойкий ламинат, инженерная доска или кварц-винил нейтрального древесного оттенка. Покрытие получается теплым по восприятию и легко вписывается в разные стили.
В зоне кухни иногда используют плитку или керамогранит, устойчивые к влаге и загрязнениям. Чтобы переход не «резал» глаз, подбирают материалы близкие по тону и фактуре. Дополнительное зонирование создают с помощью ковров в гостиной или у кровати. Они добавляют уюта и смягчают звучание твердых поверхностей, не ломая общее восприятие пространства.
На фото: пример красивого ремонта в студии 23 кв. метра, ЖК «Бунинские луга». В кадре диван прямой Слипсон Мини от divan.ru. Хоумстейджер: Мария Дерендяева; фотограф: Ирина Зверева
Обычно выделяют 3–4 ключевые зоны: кухню, место для отдыха и сна, рабочий уголок и хранение. В качестве зрительного разделителя дизайнеры часто предпочитают габаритные элементы мебели — диван, шкаф или многофункциональный стеллаж. Не менее эффективные способы — выделение функциональных частей комнаты цветом, подсветкой или подиумом.
Рабочее место встраивают в систему хранения или размещают у окна. Главное — чтобы каждый участок имел свое назначение, но при этом все части квартиры выглядели единым целым, без дробления на мелкие несвязанные куски.
На фото: квартира 19 кв.м в г. Москве. В кадре диван прямой Слипсон от divan.ru. Дизайнеры: Татьяна Понамарева и Ольга Елизарова; фотограф: Полина Полудкина
В маленьком пространстве он влияет не только на внешний вид, но и на удобство в повседневной жизни. Расскажем, как обставить студию 20 квадратных метров в разных вариантах дизайна.
Минимализм
Опирается на простые формы, нейтральные цвета и минимум предметов. Здесь нет лишнего декора, а каждый элемент интерьера выполняет практическую функцию. Как итог, квартира выглядит аккуратной и более просторной.
Поверхности — гладкие, светлые, с лаконичной фурнитурой. Хранение максимально скрытое: встроенные шкафы до потолка, ровные фасады без ручек, минимум открытых полок. Цвета — белый, серый, бежевый с редкими акцентами.

На фото: апартаменты 30 кв.м, апарт-отель «Московский Авенир». В кадре кресло-кровать Слипсон Мини от divan.ru. Дизайнер: Екатерина Шейн; фотограф: Кристина Плеер
Неоклассика
Более сдержанное, адаптированное под малый метраж классическое направление. Вместо тяжелой лепнины и громоздкой мебели используют тонкий молдинг, легкие формы и спокойную палитру. Основу составляют светлые стены, симметричная расстановка мебели и аккуратные декоративные элементы.
Кухонный гарнитур может быть с рамочными фасадами, но без обилия декора. Текстиль — плотный, приятный на ощупь, возможно, с геометрическим орнаментом.

Для неоклассики не подойдет вариант с барной стойкой — этот прием относится к современному стилю. Придется экономить место на гарнитуре и размещать обеденную группу для 2–4 человек. На фото: студия 24,5 кв.м, гостиничный комплекс «Аметист». В кадре диван прямой Слипсон и консоль Трейвис — все от divan.ru. Дизайнер: Аля Башилова; фотограф: Максим Канакин
Лофт
В студии 20 кв.м он мягкий, без излишней «брутальности». Используют имитацию кирпичной кладки на одной стене, открытые металлические детали, простую мебель с прямыми линиями. Цвета — серый, графитовый, кирпичный, теплое дерево.
Важную роль играет свет: трековые системы, промышленного вида светильники, открытые лампы. Если высота потолков позволяет, уместно добавить антресольный уровень или подвесные конструкции для хранения.

Пример на фото: как обставили студию на 20 квадратов в г. Кронштадте. В кадре диван прямой Сваут от divan.ru. Дизайнер: Светлана Горянина; фотограф: Татьяна Никитина
Современный
Самый универсальный вариант для маленькой студии. Он сочетает простые формы, функциональность и комфорт без жестких правил. Здесь легко комбинировать разные фактуры: дерево, металл, текстиль, гладкие фасады.
Цветовая гамма спокойная, с парой акцентных тонов. Мебель — лаконичная, часто модульная, с возможностью трансформации. В такой интерьер удобно внедрять встроенную технику и скрытую подсветку. Главное — не перегружать пространство деталями.

На фото: студия 27 кв.м, ЖК «Город Дейли». В кадре диван прямой Кейсес от divan.ru. Хоумстейджер: Светлана Немцова; фотограф: Наталья Добудько
Экостиль
Создает ощущение спокойствия и уюта благодаря натуральным материалам и мягкой палитре. В отделке используют дерево или его качественные имитации, природные оттенки — песочный, оливковый, травяной, терракотовый.
Текстиль фактурный, нарочито грубоватый — лен, хлопок, шерсть. Уместны плетеные элементы из ротанга. В качестве декора — живые растения, простая керамика. Важно выдержать меру: даже «природный» интерьер при избытке деталей может выглядеть загроможденным, особенно на 20 кв.м.

Фото: Lisa Anna / Pexels
Скандинавский
Идеально подходит для небольших студий. Основу составляет белый или очень светлый фон, на котором хорошо читаются теплые древесные акценты и простая мебель. Интерьер получается легким, «воздушным», с упором на комфорт и практичность.
На полу обычно используют светлое дерево или его аналог, добавляют текстиль — ковры с простым орнаментом, подушки, пледы. Декор минимален и функционален: открытые полки, пара постеров, живая зелень. Освещение многослойное, с несколькими источниками теплого света, что особенно важно в студийном формате.

Фото: Alex Tyson / Unsplash
Изделия бренда divan.ru
Контемпорари
Микс современных стилей без строгих канонов. Он позволяет сочетать лаконичную мебель с уютным текстилем и актуальным декором. Цвета — нейтральные, с несколькими акцентами: приглушенный синий, терракотовый, глубокий зеленый.
Формы простые, но не слишком строгие. Важен комфорт: удобный диван или кровать, мягкий ковер, хорошо организованное освещение. В такой студии легко менять настроение с помощью текстиля и мелкого декора. Это хороший вариант, если интерьер должен быть гибким и адаптироваться под разные задачи.
На фото: студия 31 кв.м в г. Екатеринбурге. В кадре диван прямой Слипсон Мини от divan.ru. Хоумстейджер: Алина Левкина; фотограф: Татьяна Ульянова
Хай-тек
Акцент на технологиях и четких линиях. В студии 20 кв.м он проявляется в гладких глянцевых или матовых фасадах, встроенной технике, скрытых системах хранения. Палитра чаще холодная: белый, серый, черный, металлические оттенки, иногда — яркий акцентный цвет.
Освещение продуманное: точечные светильники, трековые системы, подсветка отдельных предметов и ниш. Мебели немного, она функциональна и часто трансформируется.
Прованс
Сочетание деревенской непритязательности и французского шарма. В маленькой студии его воплощают с помощью легких форм и приглушенных, выбеленных оттенков: лавандовых, молочных, нежно-голубых, оливковых.
Мебель может быть с эффектом старения, но без излишнего декора. Текстиль — натуральный, с мелким цветочным рисунком или клеткой. Нужное настроение создадут пара винтажных аксессуаров, керамика и живые цветы в кашпо. Главное — оставить достаточно «воздуха» и не заполнять каждый сантиметр декором.
Изделия бренда divan.ru
В квартире 20 кв.м этот вопрос стоит особенно остро, потому что площади для больших шкафов или гардеробной не хватает. Чтобы вещи не заполняли свободное жилое пространство, воспользуйтесь советами дизайнеров:
- Создайте одну-две крупные системы: встроенный шкаф до потолка, гардеробная-ниша, высокий стеллаж. Это выглядит аккуратнее, чем много мелкой разрозненной мебели.
- Организуйте хранение на балконе, даже если он не утеплен.
- Выбирайте многофункциональные решения. Пусть мягкая мебель трансформируется, кровать имеет подъемный механизм, а пуф в прихожей — ящик внутри.
- Делите комнату на зоны с помощью «легких» систем хранения — низких или высоких стеллажей.
- Не забывайте о ванной: используйте пространство под купелью, нишу над инсталляцией и другие подходящие места.
- Максимально задействуйте подвесные конструкции: настенные полки, крючки, кронштейны, карманы и пр.

Фото: in4mal / iStockphoto.com
Свет в небольшом пространстве однокомнатной квартиры 20 кв. метров выстраивают слоями: общий, локальный и декоративный. Вместо одной люстры используют несколько сценариев — трековые системы, точечные светильники, бра и торшеры. Так проще зонировать помещение и быстро создавать необходимую атмосферу — рабочий режим или расслабленный семейный вечер.
Если вы выбираете торшеры, расположите их таким образом, чтобы сэкономить место. Например, за стулом, диваном или в дальнем углу кровати.
С декорированием все просто — попрощайтесь с деталями, которые не служат цели или не работают в контексте общего пространства. Несколько постеров, пара растений, интересный текстиль и 2–3 выразительных предмета достаточно, чтобы интерьер не выглядел пустым. Главное — не загромождать поверхности мелочами и поддерживать общую цветовую и стилевую линию.

На фото: маленькая квартира в ЖК «Большое Путилково». В кадре кровать Амьен 160 от divan.ru. Дизайнер: Анастасия Сердюкова; стилист: Екатерина Шаповалова; фотограф: Мария Войнова
Модели подбирают сначала по функции, а уже потом по внешнему виду. Определяют места для кухни, спального и рабочего уголков, затем «вписывают» шкафы и дополнительные элементы. Крупные предметы ставят вдоль стен, освобождая центр комнаты и сохраняя проходы.
Отдайте предпочтение встроенной технике и системам хранения, оборудованным в ящиках под диваном или в свободной нише. Для кухонной зоны подойдет бесшумная стиральная машина, посудомойка и вытяжка, которая должна не только достаточно тихо работать, но и быть мощной. Спальное место — кровать или компактный раскладной диван. Выбирайте мобильные конструкции, которые в случае необходимости легко передвинуть.
В этом проекте зону готовки спрятали за фасадами — когда они закрыты, трудно догадаться, что это не просто красивый шкаф. На фото: маленькая квартира в ЖК «Большое Путилково». В кадре кровать Амьен 160 от divan.ru. Дизайнер: Анастасия Сердюкова; стилист: Екатерина Шаповалова; фотограф: Мария Войнова
Даже на небольшой площади можно создать функциональное и уютное пространство, если продумать каждую зону отдельно.
Кухня
Ее делают максимально компактной и функциональной. Линейная или угловая планировка, фасады без лишнего декора, встроенная техника — все это экономит место и упорядочивает пространство.
Верхние шкафы обычно тянут до потолка, чтобы не потерять полезный объем. Фартук и рабочую поверхность подсвечивают LED-лентой или точечными светильниками. Если нет места для полноценного стола, его роль может выполнять барная стойка или узкая консоль у стены.

На фото: кухня в студии 23 кв.м в г. Москве. В кадре стол Таргет от divan.ru. Дизайнер: Анастасия Заркуа; стилист: Ольга Олейникова; фотограф: Роман Алексеев
Спальня
Спальное место в студии стараются сделать максимально уединенным. Часто используют кровать в нише, за легкой перегородкой, шторой или стеклянной раздвижной системой. Если места не хватает, выбирают удобный раскладной диван с качественным матрасом или кровать-подиум с ящиками.
Изголовье часто выделяют цветом, фактурой или мягкой панелью. Над кроватью размещают несколько открытых полок, чтобы не создавать ощущения давления. Обязательно предусматривают локальный свет: бра или настольные лампы делают зону сна уютной и самостоятельной.
На фото: интерьер квартиры 24 кв.м², ЖК «Символ». Дизайнер: Сара Михайлова; декоратор: Дарья Сухарева
Изделия бренда divan.ru
Прихожая
У входа размещают компактный шкаф или систему крючков с верхней полкой, тумбу для обуви и небольшое зеркало. Важно, чтобы вещи не копились на виду: закрытые системы хранения сразу создают ощущение аккуратности. Если есть возможность, лучше организовать один высокий шкаф, который частично возьмет на себя функцию гардеробной.
Отделка пола более практичная, чем в основной зоне — плитка или износостойкое покрытие. Границу прихожей можно подчеркнуть другим цветом стен или освещением.

На фото: дизайн маленькой студии 29 кв.м, ЖК «Небо». В кадре кухонный стол Тюлип-2 от divan.ru. Дизайнеры: Вадим Бычков и Екатерина Бычкова; стилист: Ирина Бебешина; фотограф: Евгений Гнесин
Изделия бренда divan.ru
Рабочая зона
Ее располагают у окна или на утепленной лоджии. Небольшого стола, удобного стула и пары полок над столешницей вполне достаточно для домашнего кабинета. Если места совсем мало, применяют узкие, компактные конструкции или мебель-трансформер, которую складывают в нужный момент.
Главное здесь — предусмотреть розетки, настольную лампу и закрытые места для хранения документов и техники. Это поможет не превратить пространство в постоянный источник визуального шума.
На фото: маленькая квартира в ЖК «Большое Путилково». В кадре кровать Амьен 160 от divan.ru. Дизайнер: Анастасия Сердюкова; стилист: Екатерина Шаповалова; фотограф: Мария Войнова
Детская
Проблема маленькой студии — открытая планировка. Она создает неудобства для ребенка, которому необходим собственный мир. Хорошее решение — кровать-чердак: наверху спальное место, внизу — игровое пространство, хранение или письменный стол.
На фото: детская комната, ЖК «Галактика. Премиум». В кадре диван Эби Мини от divan.ru. Дизайнер: Лена Харлова; стилист и фотограф: Мария Пятова
Ванная и туалет
В студиях санузел, как правило, совмещенный. Такая планировка позволяет без проблем разместить необходимые предметы. Часто вместо ванны устанавливают душевую кабину со стеклянной перегородкой — это экономит место и смотрится легче.
Цвета и материалы выбирают светлые, с минимумом крупных контрастов, чтобы не дробить пространство. Коммуникации и стиральную машину скрывают в нише или корпусной мебели. Большое зеркало, хорошее освещение и единая плитка на полу делают комнату просторнее на вид.
На фото: студия 24 кв.м, ЖК «Касабланка». Дизайнер: Мария Булатова; фотограф: Виола Заварзина
Лоджия
Предоставляет дополнительную площадь. Если после демонтажа окон и дверей остается перегородка, ее превращают в столешницу.
Если объединить балкон с комнатой нельзя, его все равно стоит обустроить: компактные шкафы для сезонных вещей, складной стол, стул и несколько растений превратят пространство в удобное место для работы или отдыха. Главное — выдержать общий стиль и палитру комнаты, чтобы пространство воспринималось единым интерьером.

На фото: студия 24 кв.м, ЖК «Румянцево парк». Инвестор и хоумстейджер: Нина Василенко; фото из личного архива инвестора
В студии 20 кв.м их обычно маскируют в коробах из гипсокартона, подвесном или натяжном потолке, а также внутри шкафов и кухонных модулей. При этом важно сохранить доступ к ревизионным люкам и не перекрыть вентиляционные решетки, чтобы не нарушить работу системы.
Хороший вариант — собрать всю «техничку» вдоль одной стены или над кухней и закрыть панелями в цвет отделки. Так она не бросается в глаза и воспринимается как часть архитектуры, а не отдельные элементы.
- Использовать светлую базовую палитру и минимум резких контрастов, чтобы не дробить комнату на отдельные фрагменты.
- Сделать единое напольное покрытие по всей студии, без частых переходов материалов и уровней.
- Добавить зеркала и стеклянные перегородки — они отражают свет и создают ощущение глубины.
- Выбирать мебель на высоких ножках или с легким силуэтом, чтобы оставалось больше видимой площади пола.
- Применять вертикальные линии: высокие шкафы, вытянутые от потолка до пола шторы делают комнату «стройнее».
- Не загромождать комнату хламом: лишние предметы и открытые поверхности, заставленные мелочами, моментально «съедают» пространство и создают ощущение тесноты.

Профессиональный дизайн интерьера квартиры-студии 20 кв.м заставляет забыть о нехватке метража. На фото: серый монохром в ЖК «Большая Академическая 85». В кадре диван Нумо от divan.ru. Дизайнер: Светлана Тяговская, студия SST DESIGN; фотограф: Антон Бояршинов
Чтобы использовать площадь максимально эффективно, воспользуйтесь рекомендациями специалистов:
- установите трансформируемую мебель (например, диван-кровать, откидные столы, складные стулья, кровать с ящиками);
- используйте встроенную технику;
- устройте систему хранения в ящиках под диваном, свободных нишах около окна, двери;
- спрячьте габаритные предметы: стиральную машину и пылесос в шкафу, складную столешницу — внутри ниши;
- храните все, что редко используется, выше уровня глаз — в антресолях и верхних модулях.
На фото: студия 28 кв.м, ЖК «Городские истории». В кадре диван Хевит от divan.ru. Дизайнеры: Варвара Шалито и Валерия Нестеренко; фото из личного архива дизайнеров
Правильно обустроить квартиру-студию 20 кв.м — задача непростая. Но все получится, если соблюдать основные правила:
- Разделяйте зоны светом, цветом и мебелью, а не глухими перегородками.
- Базовая отделка в светлых тонах с единым напольным покрытием «расширит» пространство и сделает интерьер более спокойным.
- Лаконичные стили без избытка декора (минимализм, скандинавский, современный или мягкий контемпорари) легче всего «уживаются» с маленьким метражом.
- Система хранения — максимально закрытая и незаметная: шкафы до потолка в нише, подиумы с выкатными ящиками, кровати и диваны с бельевым отсеком предпочтительней множества разрозненной мебели.
- Освещение лучше строить по слоям: общий свет, рабочая подсветка и декоративные источники, которые создают нужное настроение.
- Мебель выбирают компактную и многофункциональную: трансформеры, складные и выкатные элементы. От дублирования функций лучше отказаться и избавиться от лишних столов, кресел и других громоздких предметов.
Помните: вряд ли микроквартира будет вашим жильем в течение всей жизни. Поэтому, если вы стеснены в средствах, не стоит использовать дорогостоящие материалы для отделки и сделанные на заказ встроенные предметы: переезжая, вы не сможете забрать их с собой.
Какие ошибки обычно допускают при оформлении маленькой студии?
Чаще всего перегружают пространство мебелью и декором, пытаясь «впихнуть» полный набор привычных зон. Еще используют слишком темную отделку и пеструю палитру, которые зрительно сокращают метраж.
Многие недооценивают организацию хранения: ставят много мелких шкафчиков и открытых полок вместо одной-двух продуманных, высоких систем. В результате очень быстро квартира в 20 квадратных метров начинает выглядеть тесной и захламленной.
Какую бытовую технику стоит выбирать для небольшой студии?
Лучше всего — встроенную и компактную: узкую посудомойку, варочную панель на 2–3 конфорки, духовой шкаф с функцией микроволновки, небольшую стиральную машину. Это помогает сэкономить место и сохранить фасад кухни ровным и аккуратным.
Желательно выбирать малошумные модели, особенно если спальное место расположено рядом. От предметов, которыми почти не пользуетесь, лучше отказаться или заменить многофункциональными приборами.
Стоит ли использовать стеклянные элементы в интерьере студии 20 кв.м?
Да, в малогабаритке они уместны и даже полезны: пропускают свет и не «режут» пространство. Прозрачные перегородки, столы с тонкой столешницей и легкие витрины помогают зонировать комнату, не утяжеляя интерьер.
Здесь важно не переусердствовать с глянцем и блеском, чтобы обстановка не стала «холодной». Используйте матовое или тонированное стекло — оно дает тот же эффект, но выглядит мягче и комфортнее в повседневной жизни.











































































































